Lancié (69220) 6719-Batiment industriel à Lancié
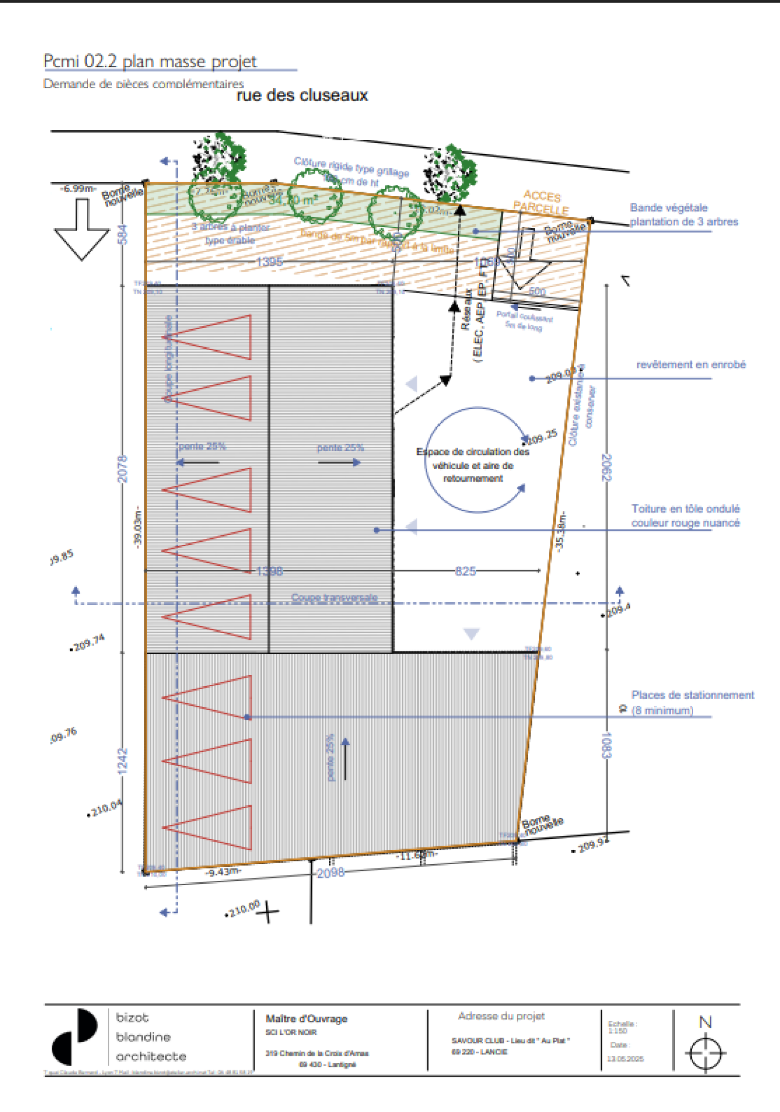
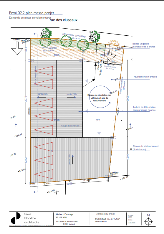
A vendre, ce batiment artisanal en cours de constuction offrant une surface de 530 m2 divisible en deux cellules, complété par une mezzanine de 50 m2, édifié sur un terrain de 850 m2. Idéal pour une activité artisanal, de stockage ou pour une entreprise souhaitant disposer d'un espace neuf, fonctionnel et modulable.
Le batiment bénéficie de prestations de qualité: dalle béton, bardage double peau, portes sectionnelles ainsi que fluide en attente permettant un aménagement intérieur selon les besoins de l'acquéreur.
A l'extérieur, une aire de stationnement et de retournement en enrobé qui permet une ciculation pratique et un accès optimisé.
Livraison prévisionelle: Juillet 2026
Les informations recueillies sur ce formulaire sont enregistrées dans un fichier informatisé par La Boite Immo agissant comme Sous-traitant du traitement pour la gestion de la clientèle/prospects de l'Agence / du Réseau qui reste Responsable du Traitement de vos Données personnelles.
La base légale du traitement repose sur l'intérêt légitime de l'Agence / du Réseau.
Elles sont conservées jusqu'à demande de suppression et sont destinées à l'Agence / au Réseau.
Conformément à la loi « informatique et libertés », vous disposez des droits d’accès, de rectification, d’effacement, d’opposition, de limitation et de portabilité de vos données. Vous pouvez retirer votre consentement à tout moment en contactant directement l’Agence / Le Réseau.
Consultez le site https://cnil.fr/fr pour plus d’informations sur vos droits.
Si vous estimez, après avoir contacté l'Agence / le Réseau, que vos droits « Informatique et Libertés » ne sont pas respectés, vous pouvez adresser une réclamation à la CNIL.
Nous vous informons de l’existence de la liste d'opposition au démarchage téléphonique « Bloctel », sur laquelle vous pouvez vous inscrire ici : https://www.bloctel.gouv.fr
Dans le cadre de la protection des Données personnelles, nous vous invitons à ne pas inscrire de Données sensibles dans le champ de saisie libre.
Ce site est protégé par reCAPTCHA, les Politiques de Confidentialité et les Conditions d'Utilisation de Google s'appliquent.
